Trondheim Spektrum
_date: 2015
status:
type: education
client: trondheim spektrum

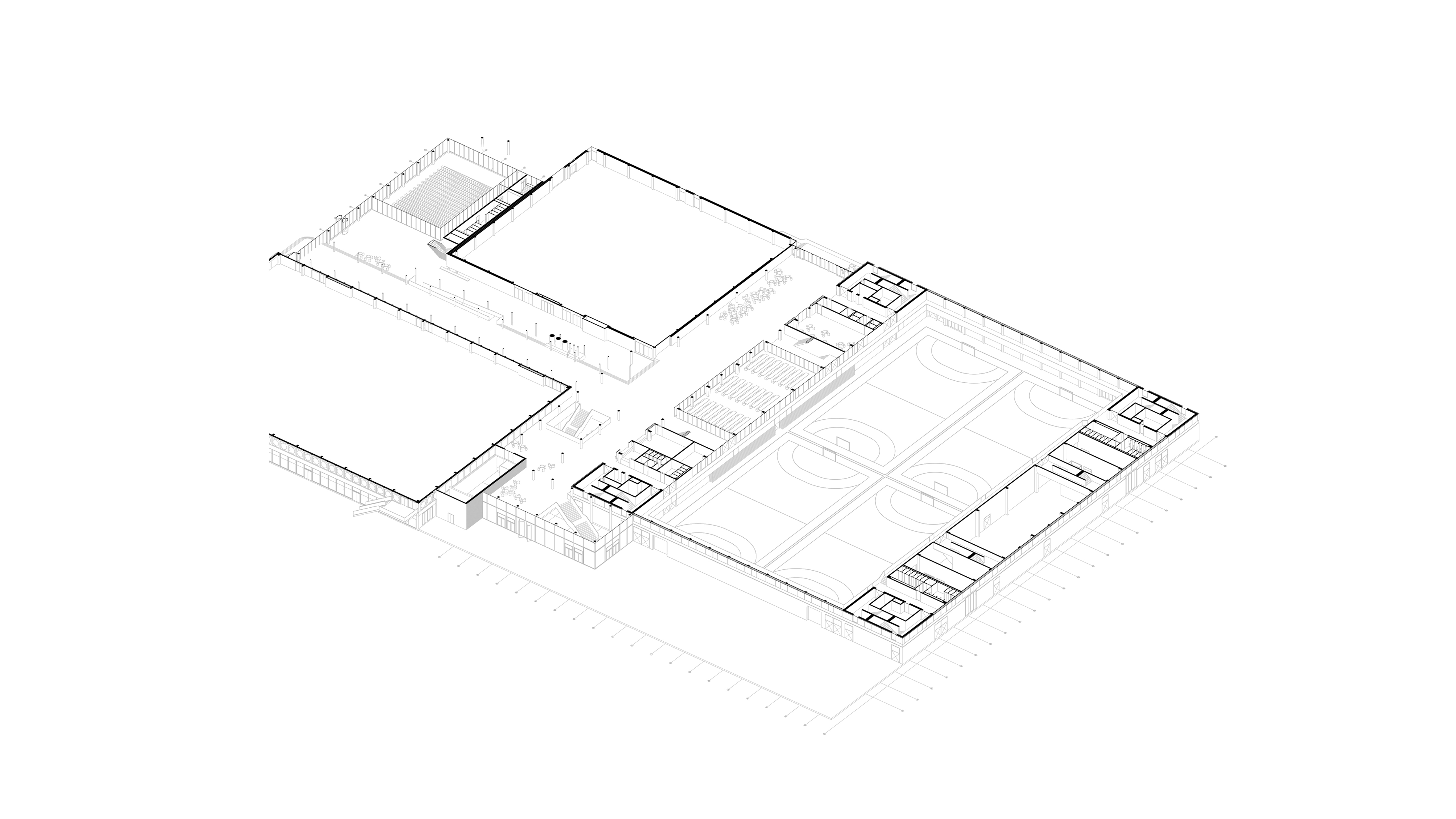
The oldest part of the plant (Hall A, B and C with adminsistration fleet) shall be erased and replaced with new buildings.
Approximatley 8,500 m2 will be replaced with new buildings approximatley. It is likely that the plant will be used for the same purpose like today.

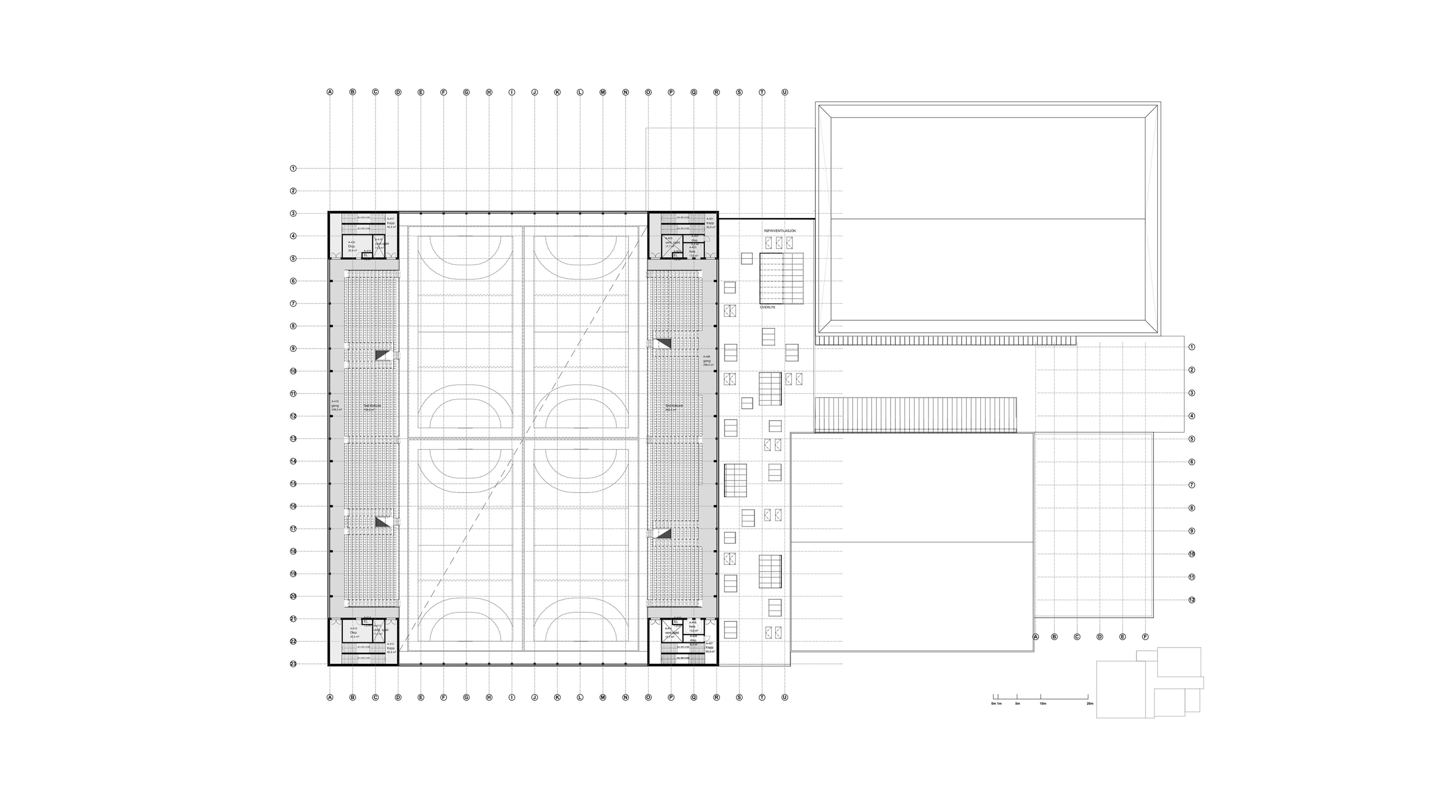
A new hall will be built with a hall surface of 5407 m2, thus providing space for 4 handball courts. The hall will also be equipt for 8,000 spectators, including fixed stands, telescope stands and temporary stands.
The new hall is connected to the existing building, which contains kitchen, serving area, plot area, administration, course and conference area. The outdoor areas will be upgraded with internal roads and parking spaces.


